













Lade stander til elbil
Lade stander – stilfuld og robust opladning til din elbil ⚡
En lade stander fra byJEMA kombinerer dansk design, funktionalitet og holdbarhed i ét minimalistisk udtryk.
Produceret på vores egen fabrik i Danmark – skabt til at give dig en elegant og praktisk løsning til opladning af elbil derhjemme.
Den robuste stålkonstruktion og de rene linjer gør lade standeren til mere end blot et teknisk element – den er et æstetisk supplement til haven, indkørslen eller carporten.
✅ Dansk design og produktion
✅ Fremstillet i cortenstål, galvaniseret eller sortlakeret stål
✅ Solid konstruktion med høj vejrbestandighed
✅ Kompatibel med de mest populære ladebokse på markedet
✅ Lang levetid og minimal vedligeholdelse
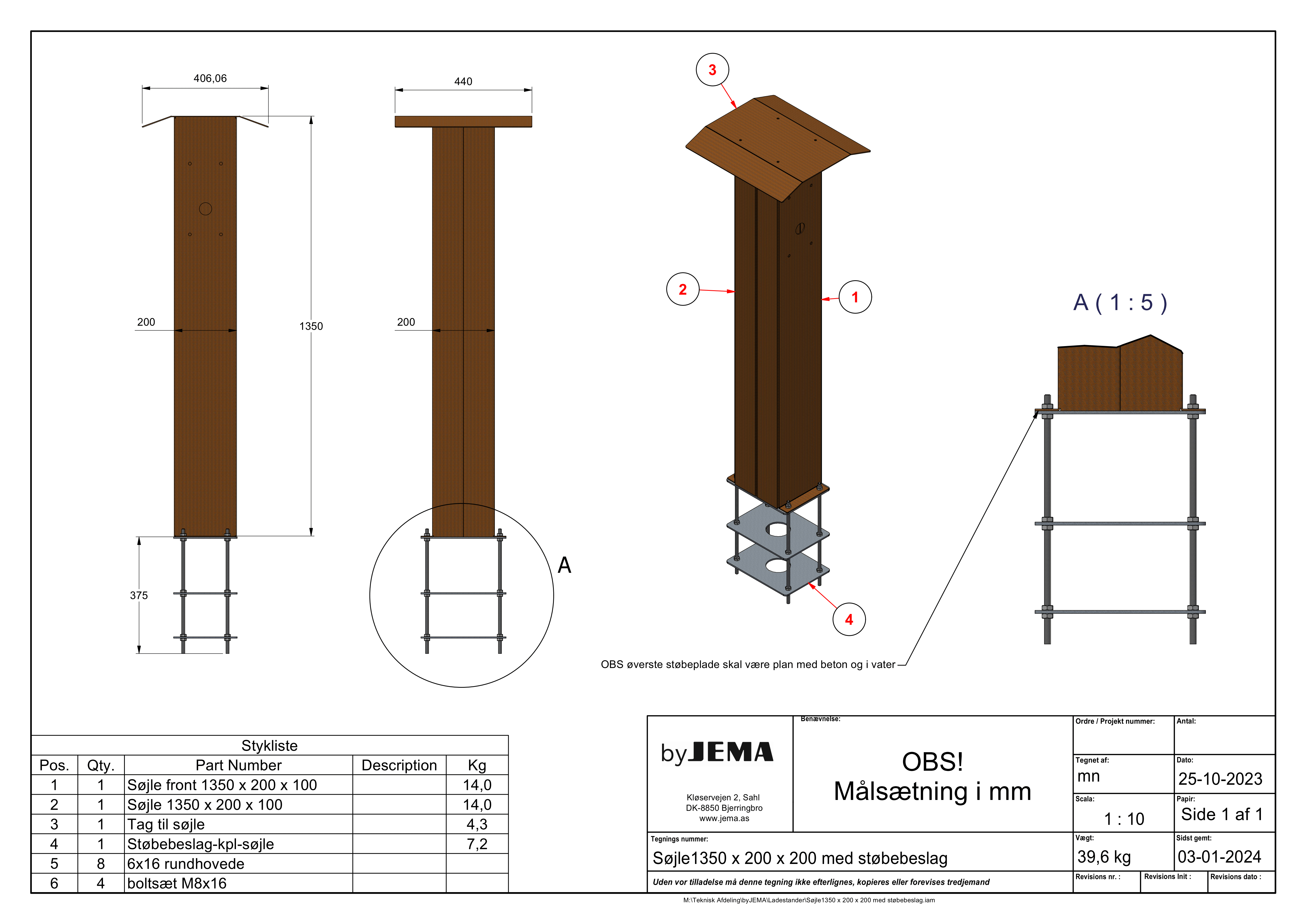
Dimensioner:
• Højde: 135 cm – giver god synlighed og let tilgængelighed
• Bredde: 20 × 20 cm – passer ind i alle omgivelser
Materiale:
Cortenstål – udvikler en smuk, beskyttende rustpatina og kan holde i årtier.
Galvaniseret stål – sølvgrå finish med fremragende rustbeskyttelse og minimal vedligeholdelse.
Sortlakeret stål – elegant, vådlakeret overflade i RAL 9005 halvmat, som passer perfekt til moderne arkitektur.
Placering:
• Skal fastgøres til underlag for maksimal stabilitet.
• Passer til støbebeslag eller betonbolte (kan tilkøbes).
• Egnet til opsætning i indkørsel, ved husmur eller carport.
Kompatibilitet:
• Ladeboks medfølger ikke.
• Passer til de mest udbredte ladebokse (Easee, Zaptec, Clever, m.fl.).
💡 byJEMA’s lade stander er produceret i 3 mm stål og tåler vind, vejr og daglig brug uden at miste sit udtryk.
Cortenstål:
Kræver ingen vedligehold – udvikler naturlig patina, der beskytter mod korrosion.
Kan i begyndelsen afgive lidt rustvand; undgå afløb over lyse belægninger.
Galvaniseret stål:
Vedligeholdelsesfrit – kan rengøres med vand og mild sæbe efter behov.
Sortlakeret stål:
Rengør med blød klud og mildt rengøringsmiddel.
Undgå hårde svampe og skuremidler for at bevare den flotte, halvmatte finish.
En lade stander fra byJEMA er designet til at indgå harmonisk i dit udemiljø.
Kombinér den med plantekasser, bænke eller udekøkkener i samme materialer for et ensartet, arkitektonisk udtryk.
Placér den strategisk, så den fremstår som en naturlig del af din indkørsel eller carport – et praktisk og æstetisk samspil mellem teknologi og dansk design. 🌿
Medfølger ladeboks?
Nej, ladeboksen købes separat – vores stander passer til de fleste modeller på markedet.
Kan den stå frit uden fastgørelse?
Vi anbefaler fastgørelse til fast underlag med støbebeslag eller betonbolte for maksimal stabilitet.
Ruster cortenstål igennem?
Nej, cortenstål danner en beskyttende rustpatina, som forhindrer yderligere korrosion.
Produktbeskrivelse
Specifikationer
Vedligehold
Inspiration
Ofte stillede spørgsmål
Montagevejledning
Lade stander – stilfuld og robust opladning til din elbil ⚡
En lade stander fra byJEMA kombinerer dansk design, funktionalitet og holdbarhed i ét minimalistisk udtryk.
Produceret på vores egen fabrik i Danmark – skabt til at give dig en elegant og praktisk løsning til opladning af elbil derhjemme.
Den robuste stålkonstruktion og de rene linjer gør lade standeren til mere end blot et teknisk element – den er et æstetisk supplement til haven, indkørslen eller carporten.
✅ Dansk design og produktion
✅ Fremstillet i cortenstål, galvaniseret eller sortlakeret stål
✅ Solid konstruktion med høj vejrbestandighed
✅ Kompatibel med de mest populære ladebokse på markedet
✅ Lang levetid og minimal vedligeholdelse
Vælg muligheder














Hvad vores kunder siger
⭐⭐⭐⭐⭐ Anmeldelser
"Kundeservicen ligger i højsædet - de er utroligt hjælpsomme, altid tilgængelige til at besvare spørgsmål, og der har været et enormt fokus på tilfredshed hos os som kunder.
Samlet set kan vi kun give byJEMA vores varmeste anbefalinger. Fra den fremragende kundeservice og gratis fragt til de holdbare og smukt designede produkter, har vores oplevelse været positiv hele vejen igennem. Hvis du leder efter kvalitetsprodukter til din have, er byJEMA.dk helt klart et besøg værd."
Cathrine og Michell
"Vi har efterhånden en del corten i haven, i forskellige former og med forskellige funktioner. - alt fra byJEMA. Kvaliteten er god, nemt at samle og prisen er fornuftig!
byJEMAs design i højbede med den buede kant for oven gør at vi trygt kan lade børnene lege i haven omkring produkterne uden at bekymre os om skarpe kanter”
Lisa Lausten
"Vi vil godt give ⭐⭐⭐⭐⭐➕til byJEMA for både deres skønne produkter, danske design og TOP KLASSE service.
Siden er der kommet en hel del mere ind i vores have fra byJEMA…. Ja vi er blevet ramt af ”Rust feber”🤣
MEN årsagen udover at vi er vilde med alle deres super fede produkter lige fra udekøkken, bålfade, bed kanter og meget mere, så er det helt afgørende i vores investeringer hos byJEMA, at de yder den absolut BEDSTE service man kan ønske sig som kunde. Jeg vil vove at sige, at man får ikke en bedre service end den byJEMAs team yder til deres kunder."
Maria og Bo
"Vi kan på det varmeste anbefale byJEMA.dk til alle der er på udkig efter plantekummer, bedringe mv. af stål i høj kvalitet og en webshop med fantastisk service.
Vi har af flere omgang handlet hos byJEMA.dk og hver gang, har produkterne oversteget vores forventninger med deres flotte design og kvalitet. De passer perfekt ind i vores have og giver et stilrent udtryk, som vi har ledt efter."
Mvh. @ottoshave
Vores løfte: